


PROJECTS
Earl's Court
Residential Renovation

Project Description:
Location: Earl's Court, London
This majestic mansion block in one of the most prime locations in London was in dire need of architectural renovation not only to bring a contemporary feel to it but to simplify it’s plan internal organization and turn it into a 121 m2 modern London home.
Careful propping and steel beam insertion allowed three feet thick walls to be removed increasing the net usable space by 2.3 square meters.
​
Dodgy 120 year old mouldings and skirting were stripped out and replaced with new precise profiles that matched the old. Restoring the original feel and ambience of its original time.
​
The dine-in kitchen has been designed as a contemporary extension of the living room; appliances are out of View. But elsewhere in the living room and bedrooms, Victorian atmosphere was to be preserved.
Project status: Completed in 2014
Area: 126 Sqm

GALLERY
Images & drawings

Exterior View

Kitchen

Kitchen

Living Room

Living Room

Living room shelving

Bathroom

Bathroom

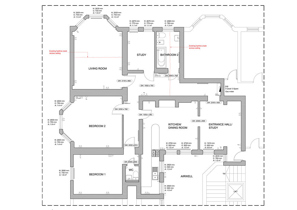
Existing Floor Plan

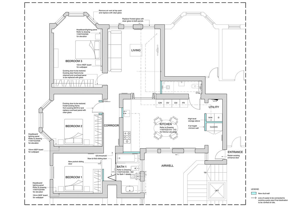
New Floor Plan

Internal Elevations

Detailing of Works

